
This is one of the only Market-rate housing project I had the opportunity to work on extensively while at SMR Architects. The property is located on an extremely steep slope on a main thoroughfare through the Delridge neighborhood of West Seattle.
Challenges
- The site was narrow with an extremely steep slope
- The site is covered in trees, which the neighbors uphill had grown accustomed to and were resistant to any change which would impact their views
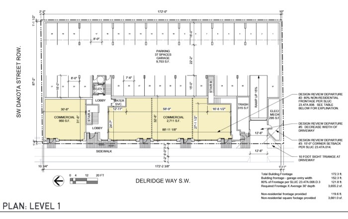
- One parking space per unit is required, in addition to a minimum of 3,500 sqft of commercial space
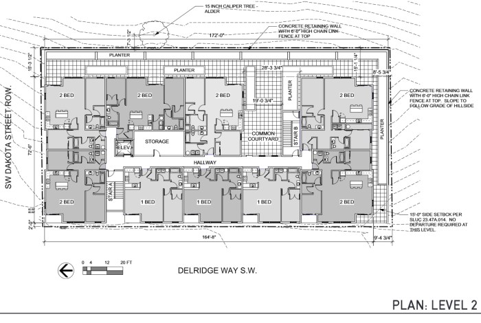
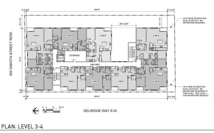
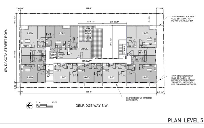
- The east edge of the site has a required 15′ setback while the south side had a a required setback of 10′, which impacted the shape of our building greatly.
- The East side of the site received little to no light due to the slope and trees of the adjacent properties
- the compactness of the site made reaching the minimum green factor difficult
- A very tall concrete retention wall was required to hold back the force of the slope on the west side of the site, creating a canyon-esque effect
Opportunities
- Delridge Way (the street to the west of the site) is wide, busy, and well traveled which will activate and enliven the commercial spaces
- The client wanted large, spacious units throughout the entire building, making it a unique project in the area
- Because of the steep slope, the neighbors to the East would see little impact of the building on their views
- By creating a butterfly roof we were able to channel storm water into storm planters in the residential outdoor space on the 2nd floor. The plants which thrive in this flooded environment also need very little light and are green throughout the year, making the outdoor space much more pleasant.
- By ramping up into the garage we could maintain the minimum 11′ clear space above parking and the minimum 13′ ceiling height in the commercial areas while cutting excavation costs under the parking
Images




The full design review packet submitted to the West Seattle Design Review Board and approved on November 19, 2015 can be found here